The Richmond

The Rivers Series

Simple and flexible designs for the new you

This collection is perfect for the lifestyle change you’re looking forward to. The Rivers Series offers a versatile collection of floor plans for your sea change, tree change, retirement or holiday home. With luxury features typically reserved for larger houses, you will enjoy a full-size kitchen, ensuite and quality finishes.

With compact living areas, The Rivers Series caters for the lifestyle that desires a hobby room, a study or an extra bedroom for visitors. Enough space to welcome the family and still have your own privacy, what could be better?

Tailor your design as much as you wish and reflect your own personal style by incorporating a standard Classic Country theme or optional Hamptons, Contempo, Coastal façade and interior design theme.

Specifications

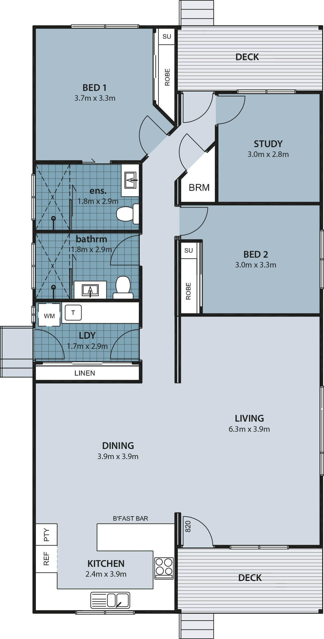
Home

from $ 369,500

Verandah

from $ Inc

Length

16.2m

Width

8.0m

Total Living Area

115.17m2

Alfresco/Porch

14.43m2

Verandah

Inclusions & Options

Make this house a home! Explore the many options to tailor your home to suit your lifestyle needs

white-title-holder
Standard Inclusions

Proudly partnered with Polytec, Caesarstone, Ariston, Reece & Harvey Norman

We have plenty of options & Inclusions for you to explore, allowing you to tailor your home to suit your lifestyle needs, inside and out. Everything from kitchen configurations to bathroom tiles, cladding styles to carports. Take a look at all the Inclusions & Options available to personalise your home.

white-title-holder
Floor Coverings & Window
Furnishings Fixed
Price Package

Proudly partnered with Decorug.

A good sturdy home needs a through-out flooring system and window treatments. Your flooring and blinds will dictate the mood of your rooms and in any case, durability is key. Whether it’s timber, vinyl, carpet or tiling, shutters, roller blinds or curtains, Manor Homes has the right solution for you.

white-title-holder
Deck & Verandah
Options
home Inclusions Deck & Verandah NSW

Your deck or alfresco so perfectly captures the essence of creating a lifestyle living. Offering a wide-sweeping verandah, with picturesque views, seamlessly welcoming the outdoors in. Your verandah is what connects you with your outdoor environment and allows for an open-plan living environment, capturing the sunlight as it flows through your windows, forever welcoming you to enjoy the great outdoors.

Other Homes You Might Be Interested In