The Rothbury

The Mitchell Series

Simple elegance, designed to suit a modern country lifestyle.

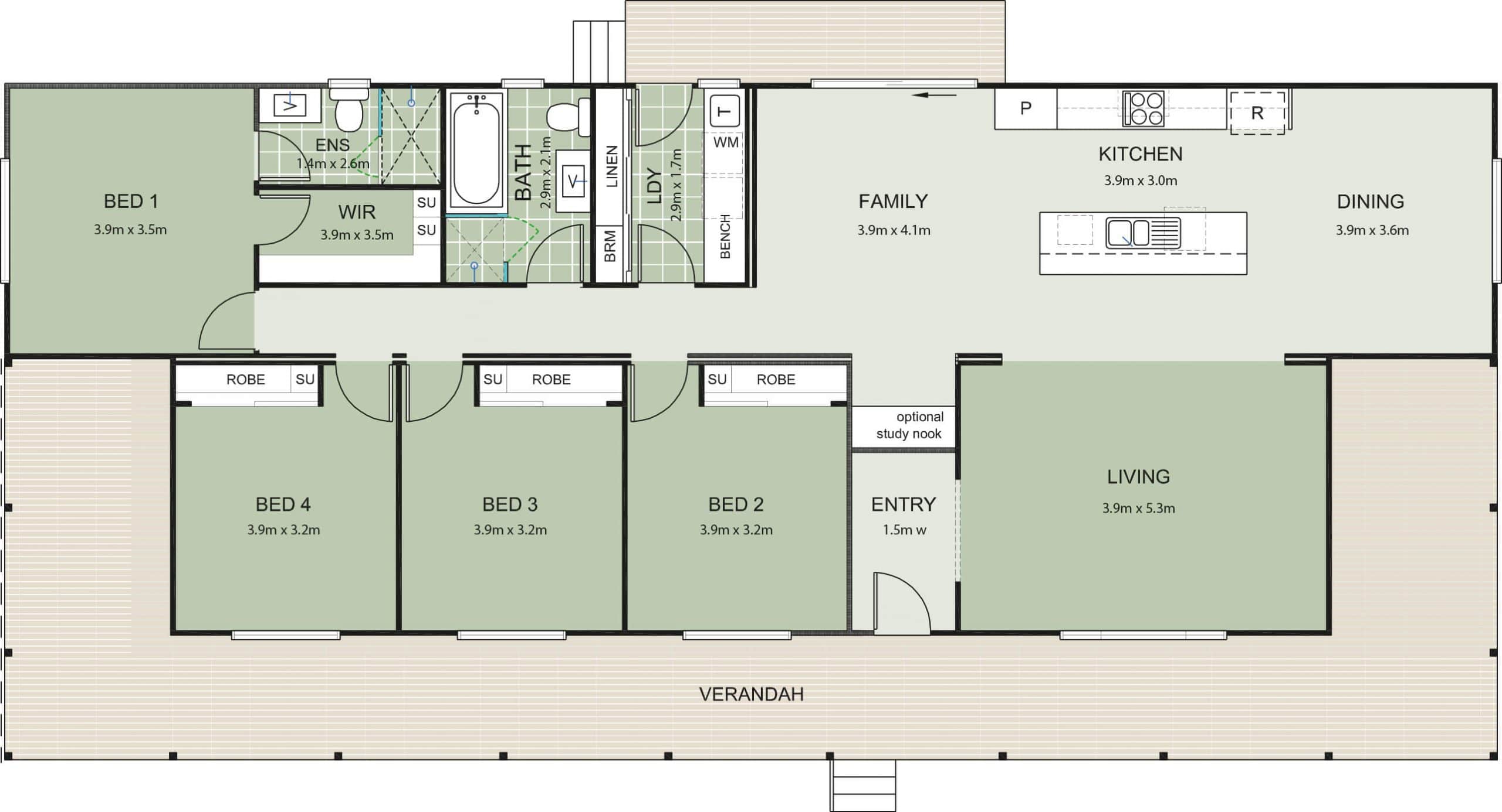
Inspired by one of our best-selling designs, The Mitchell, this range features the best-of-the-best design elements across a variety of sizes and floor plans. The Mitchell Series is designed to suit a modern-country lifestyle, while still epitomising everything there is to admire about a traditional country home. Boasting wide sweeping verandahs, open-plan living areas and high raked ceiling, this series allows you to make the most of your views, climate and landform; with The Mitchell Series, you can embrace all your land has to offer, whilst still enjoying a modern way of life on the inside. Suitable for large blocks or land.

Specifications

Home

from $ 428,000

Verandah

from $ 46,700

Length

21.6m

Width

8.0m

Total Living Area

153.55m2

Verandah

58.13m2

Inclusions & Options

Make this house a home! Explore the many options to tailor your home to suit your lifestyle needs

white-title-holder
Standard Inclusions

Proudly partnered with Polytec, Caesarstone, Ariston, Reece & Harvey Norman

We have plenty of options & Inclusions for you to explore, allowing you to tailor your home to suit your lifestyle needs, inside and out. Everything from kitchen configurations to bathroom tiles, cladding styles to carports. Take a look at all the Inclusions & Options available to personalise your home.

white-title-holder
Floor Coverings & Window
Furnishings Fixed
Price Package

Proudly partnered with Decorug.

A good sturdy home needs a through-out flooring system and window treatments. Your flooring and blinds will dictate the mood of your rooms and in any case, durability is key. Whether it’s timber, vinyl, carpet or tiling, shutters, roller blinds or curtains, Manor Homes has the right solution for you.

white-title-holder
Deck & Verandah
Options
home Inclusions Deck & Verandah NSW

Your deck or alfresco so perfectly captures the essence of creating a lifestyle living. Offering a wide-sweeping verandah, with picturesque views, seamlessly welcoming the outdoors in. Your verandah is what connects you with your outdoor environment and allows for an open-plan living environment, capturing the sunlight as it flows through your windows, forever welcoming you to enjoy the great outdoors.

Other Homes You Might Be Interested In